 无障碍    长者助手 我的收藏   收藏
政府信息公开 规章库

揭阳市惠来县自然资源局政府信息公开

索引号: 11445224007035767J/2022-00176 分类: 国土资源、能源
发布机构: 揭阳市惠来县自然资源局 成文日期: 2022-08-10
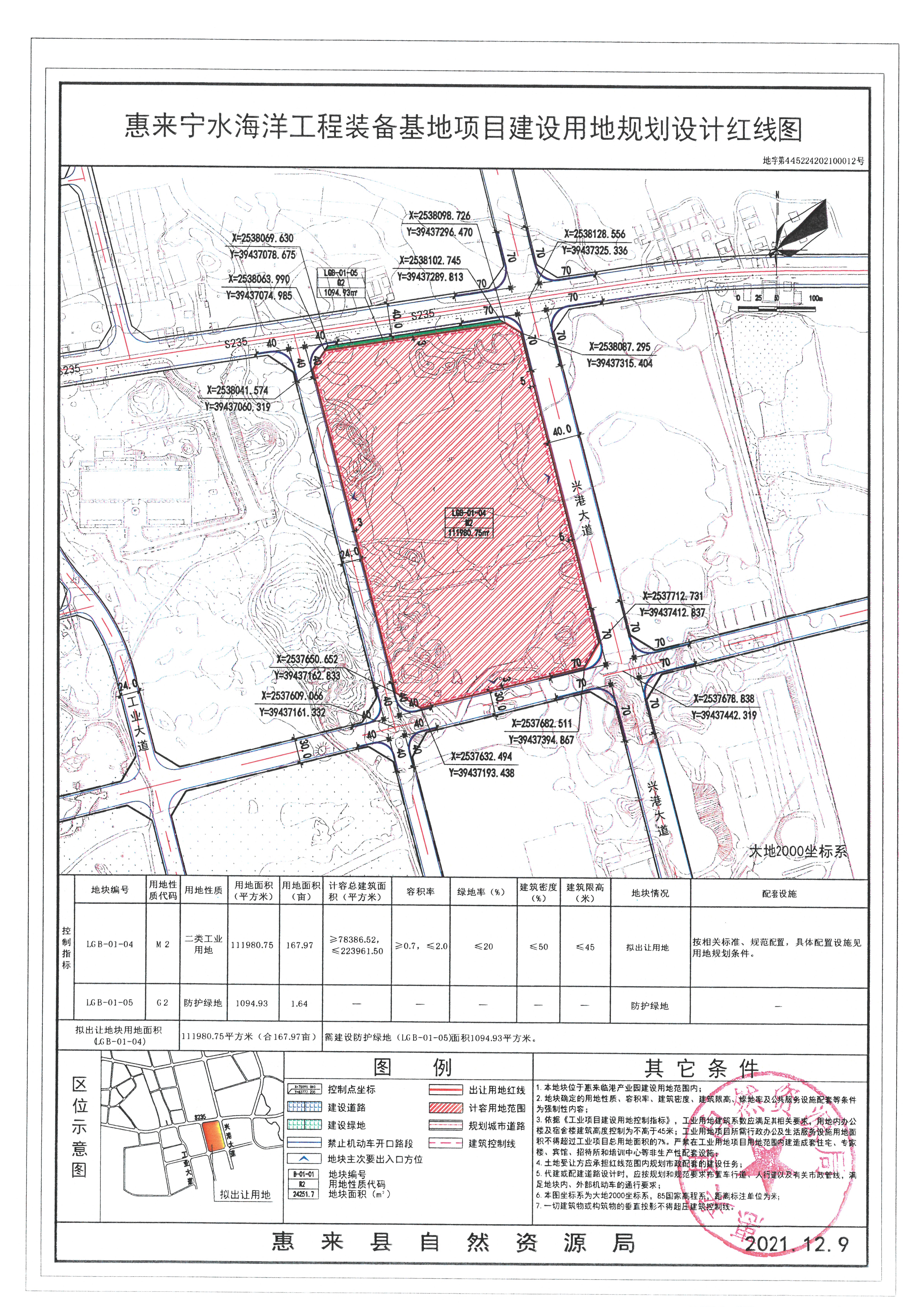
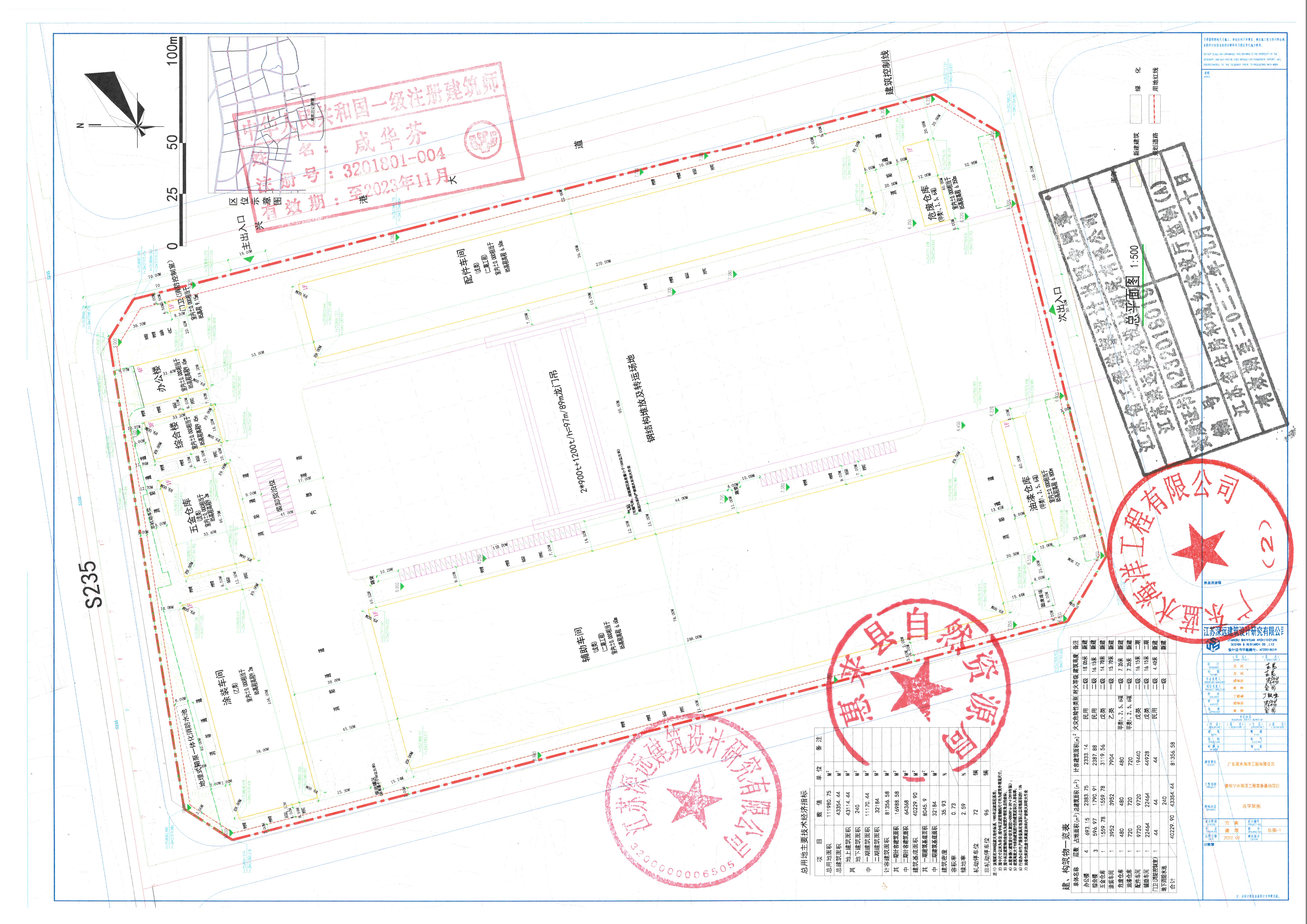
名称: 惠来宁水海洋工程装备基地项目建设工程设计方案总平面批后公告
文号: 发布日期: 2022-08-10
主题词:
【打印】 【字体:    

惠来宁水海洋工程装备基地项目建设工程设计方案总平面批后公告

发布日期:2022-08-10  浏览次数:-

SKM_C22622072016370_0013.jpgSKM_C22622072016370_0014.jpgSKM_C22622072016370_0015.jpgSKM_C22622072016370_0016.jpg